「casita(カシータ)」の間取りを徹底解説!ファミリーに選ばれるプラン別の特徴と魅力
戸建賃貸住宅「casita(カシータ)」は、99.37%という驚異的な入居率を誇る人気の賃貸住宅ブランドです。その高い人気を支える理由のひとつが、入居者のライフスタイルに合わせて選べる豊富な間取りプランにあります。
アパートやマンションでは、間取りがある程度固定されていることが多く、入居者は限られた選択肢の中から選ぶしかありません。しかしcasitaには、ファミリー層の「こんな暮らしがしたい」という願いにこたえるために設計された、バリエーション豊かなプランが揃っています。
casitaの間取りプランは大きく3種類

casitaの間取りプランは、大きく分けて以下の3つのカテゴリーで構成されています。
- マスタープラン(標準的な3LDK、6プラン)
- ガレージプラン(ビルトインガレージ付き、1LDK〜2LDK)
ルーフトッププラン(屋上テラス付き3LDK、2プラン)

これらはいずれも「25坪から建てられる」というcasitaの設計思想を踏まえた上で、住む家族の多様なニーズに応えられるよう丁寧に設計されています。反転型(左右ミラー)を含めると、マスタープランだけで16通りものバリエーションが存在します。複数棟を同じ敷地に建てる場合も、それぞれ独立した住空間として成立するよう計画されているのが大きな特徴です。
【マスタープラン】持ち家感覚の快適さを実現する定番の3LDK

マスタープランは、casitaの中でもっとも標準的なラインナップです。「賃貸だけど、持ち家のように快適に暮らしたい」というファミリー層の声に応える設計が特徴です。すべての間取りが3LDKで構成され、各居室は6畳以上を確保。LDKも十分な広さがあり、家族全員がゆったり過ごせる空間を実現しています。
PLAN-01/02 テラスへの大きな窓が魅力(3LDK・約24.79坪)

casitaのマスタープランの中で、もっともコンパクトなプランです。81.98㎡(約24.79坪)の3LDKで、対面キッチンからリビング・ダイニングを見渡しながら料理ができるレイアウトが人気です。ダイニングから庭へとつながる大きな窓は開放感を生み出し、室内にいながら外との一体感を感じられます。子どもの目が届く安心感と、適度なゆとりある間取りが、子育て世代に特に支持されています。
PLAN-03/04 広いキッチンと充実の収納(3LDK・約25.04坪)

82.80㎡(約25.04坪)のこのプランは、広々としたキッチンスペースとたっぷりの収納量が最大の魅力です。料理好きのご家族や、日用品・食料品のストックが多いご家庭にも対応できる実用的な設計です。収納が充実していることで、室内をすっきりと保ちやすく、長期入居につながりやすいプランといえます。
PLAN-05/06 アイランドキッチンのある広々リビング(3LDK・約27.04坪)

89.42㎡(約27.04坪)のこのプランには、憧れのアイランドキッチンが採用されています。キッチンの周りを360度移動できる動線の自由さは、料理のしやすさを格段に向上させます。玄関土間とつながるシューズクロークも設けられており、アウトドア用品やベビーカーなど大きな荷物も玄関周りにすっきりと収納できます。デザイン性と機能性を両立した、上質な暮らしを求めるファミリーに選ばれているプランです。
PLAN-07/08〜11/12 書斎・インナーバルコニー・ウォークインクローゼット充実のプラン群

92.74㎡(約28.05坪)のPLAN-07/08は、2階に大きなインナーバルコニーを設けた、ゆったりとしたプランです。室内干しができる広いスペースは、共働きのファミリーにとって特に嬉しい設備です。PLAN-09/10は、2階に書斎コーナーを設けた充実の間取りで、在宅ワークが増えた現代のニーズにもしっかりと対応しています。リビングに接したタイルデッキも採用されており、庭での時間をより豊かに演出します。

PLAN-11/12は、ウォークインクローゼットを2か所設けた収納重視のプランです。1階と2階それぞれに設けることで、衣類・季節用品・子どもの荷物など、家族みんなの荷物を分散して収納できます。荷物が多いファミリーや、整理整頓が好きな方に特に喜ばれる設計です。
【ガレージプラン】車好きのファミリーに嬉しいビルトインガレージ付き

ガレージプランは、建物内にビルトインガレージを備えた特別感のあるラインナップです。マスタープランよりも多少広い土地に対応し、1LDK〜2LDKの間取りが展開されています。

ガレージ内には車だけでなく、自転車やアウトドア用品、バイクなども収納できるスペースが確保されています。LDKなどの主な居住スペースは2階に配置されており、外からの視線が気にならないプライバシー性の高い設計も特徴のひとつです。

104.34㎡(約31.56坪)の2LDKプランは、寝室や子ども部屋を1階に設けることで、2階LDKの開放感を最大限に活かしたつくりになっています。ウォークインクローゼットを各フロアに配置したプランやバルコニー付きのプランなど、ライフスタイルに合わせた選択肢が揃っています。

「車が好き」「道具が多い」「外から帰ってすぐに部屋に入りたい」といったニーズを持つファミリーにとって、ガレージプランは賃貸住宅の常識を超えた満足度を提供します。このような差別化された住まいは、周辺の一般的な賃貸物件との比較で大きなアドバンテージになります。
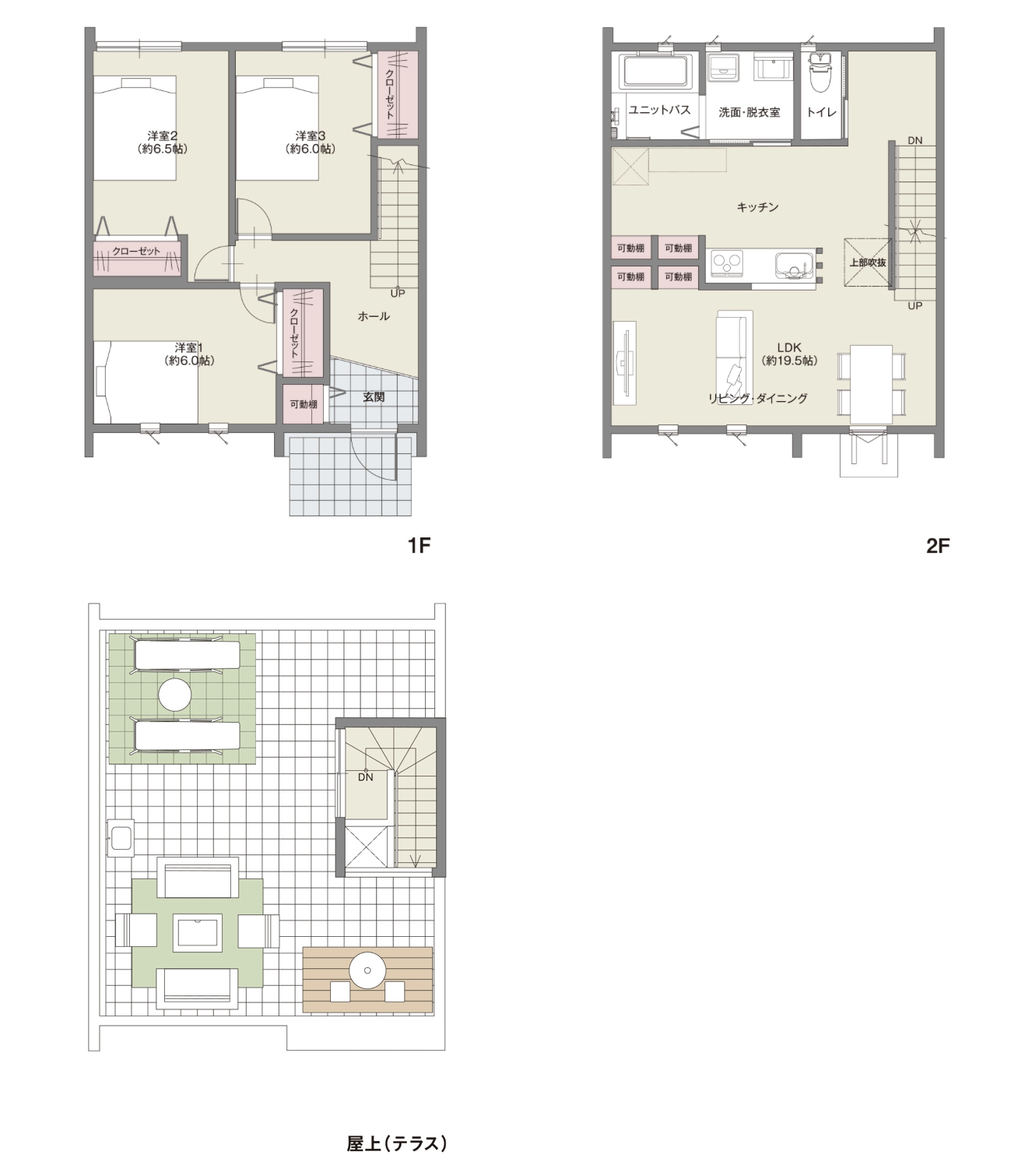
【ルーフトッププラン】屋上テラス「COLORS」で実現するリゾートライフ

ルーフトッププランは、casitaのラインナップの中でも特にプレミアム感の高いプランです。屋上テラス「COLORS(カラーズ)」を搭載し、日常の暮らしの中にリゾートのような特別な体験をもたらします。

屋上テラス「COLORS」は、アクティビティによって「キッチン&ダイニング」「ホームバー」「リラクゼーション」という3つのゾーンに緩やかに区分けされており、バーベキューを楽しんだり、夜風にあたりながらくつろいだりと、多彩な使い方ができます。オプションで屋上にジャグジー(スカイバス)の設置も可能で、自宅にいながらラグジュアリーな体験ができる設計となっています。

プランは2タイプを用意しています。PLAN-S01/S02(94.40㎡・約28.56坪)は敷地対応力の高い長方形タイプで、変形地や細長い敷地にも建てやすい設計です。PLAN-S03/S04(97.72㎡・約29.56坪)は4人家族がゆったりと暮らせる広さで、キッチンの充実した収納スペースや、プライバシーを確保した2階リビングが特徴です。

「賃貸で屋上テラス付きの家に住める」という特別感は、入居者の満足度を大きく高め、長期入居につながりやすいという点でオーナーにとっても大きなメリットです。
間取りから見えるcasitaの強み|オーナー目線で考えるポイント

ここまでプランの詳細を見てきましたが、投資家・オーナー目線からcasitaの間取りを改めて整理すると、大きく3つの強みが見えてきます。
1.ファミリー層の長期入居を促す設計

casitaの間取りはすべてファミリー向けの広さと機能を備えています。ファミリー層は単身者に比べて引越しの頻度が低く、子どもの学校区や近隣コミュニティを重視するため、一度入居すると長く住み続けてくれる傾向があります。長期入居は空室期間の短縮につながり、安定した家賃収入を確保しやすくなります。
2.選べるプランが周辺物件との差別化を生む

「ガレージ付き」「屋上テラス付き」など、一般的な賃貸住宅では得られない付加価値を持つプランが揃っていることは、周辺物件との差別化において非常に大きな強みです。希少性の高い物件は、入居者の選択肢が少ない分、競合が少なく高い入居率を維持しやすい傾向があります。
3.25坪からの小規模な土地でも対応できる柔軟性

アパートやマンションを建てるには、ある程度まとまった広さの土地が必要です。しかしcasitaなら25坪以上の土地から賃貸経営を始めることができます。遊休地や相続した細長い土地など、これまで「使いにくい」と感じていた土地でも活用できる可能性があります。
間取り選びで押さえておきたい3つのポイント

casitaのプランの中からどの間取りを選ぶかは、オーナーにとって重要な意思決定のひとつです。以下の3つのポイントを参考に、エリアや土地の条件と照らし合わせながら検討してみてください。
エリアのターゲット層を確認する

周辺に子育て世代が多い地域ではマスタープランの3LDKが人気です。一方、車移動が主な郊外エリアではガレージプランが強い訴求力を持ちます。
土地の形状・広さに合わせて選ぶ

変形地や狭い土地にはマスタープランまたはルーフトッププランのS01/S02が対応しやすく、余裕のある土地ではガレージプランや広めのS03/S04も選択肢に入ります。
差別化で選ぶ

競合物件が多いエリアでは、ガレージプランやルーフトッププランで差別化を図ることで、高い入居率を維持しやすくなります。
casitaの間取りは「住む人」と「貸す人」両方への答え
casita(カシータ)の間取りプランは、ファミリー層が「本当に住みたい」と思える設計にこだわり続けた結果として生まれたものです。対面キッチン・アイランドキッチン・ウォークインクローゼット・インナーバルコニー・ビルトインガレージ・屋上テラスなど、持ち家でしか実現できないと思われていた暮らしを、賃貸住宅として提供しています。
入居者が「ここに住み続けたい」と感じる住まいは、オーナーにとって安定した家賃収入と高い入居率をもたらします。casitaの「WIN×WIN」という設計哲学は、こうした間取りのひとつひとつに宿っています。
戸建賃貸経営の第一歩として、まずはcasitaの間取りプランの詳細を資料でご確認されることをおすすめします。土地の条件や予算に合わせて、最適なプランを見つけてみてください。